kuće
biografija
popis radova
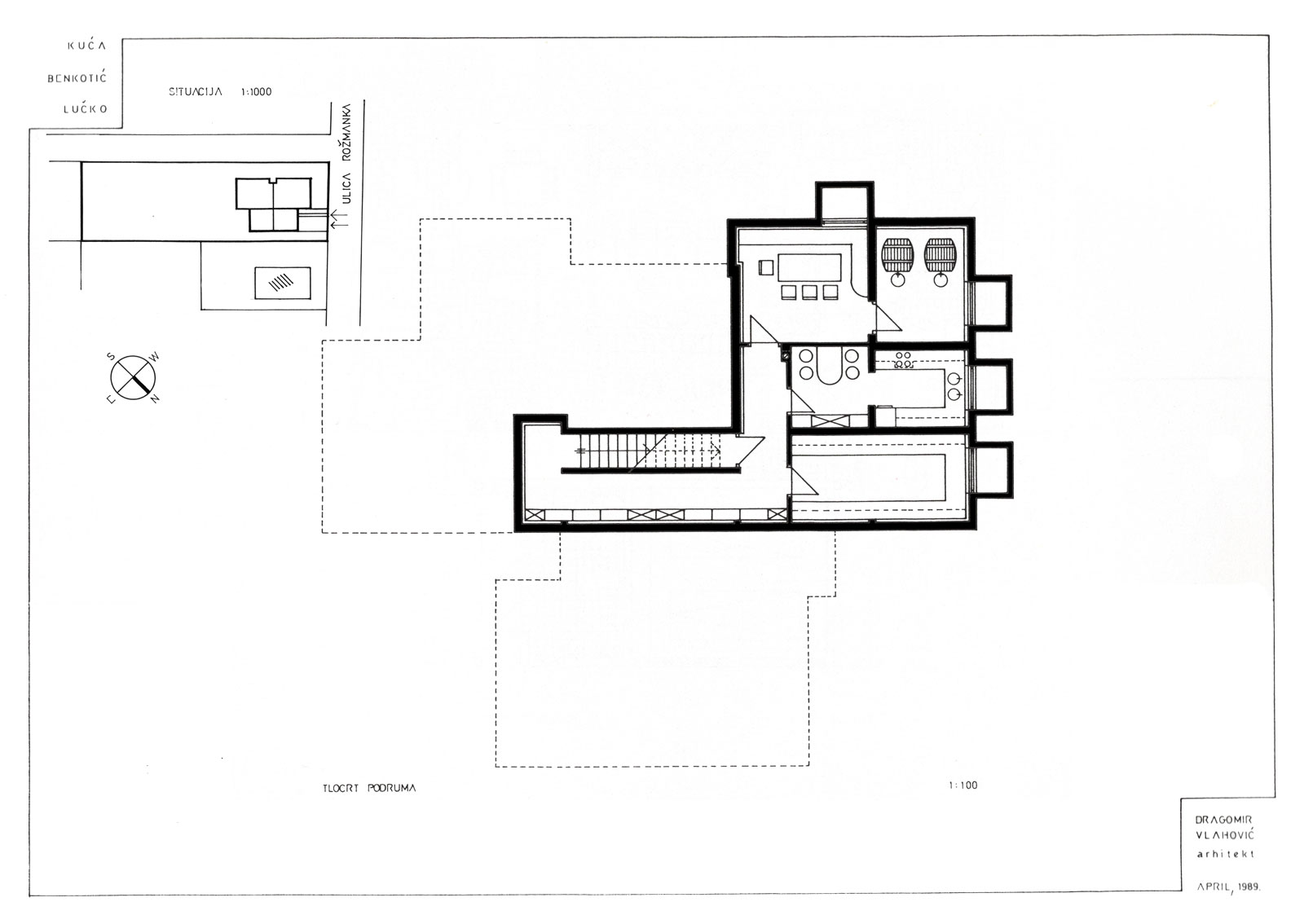
Kuća 'Crveni Marlboro' - Benkotić, Zagreb, Lučko
projekt
1989.
izvedba:
1989.-1991.