kuće
biografija
popis radova
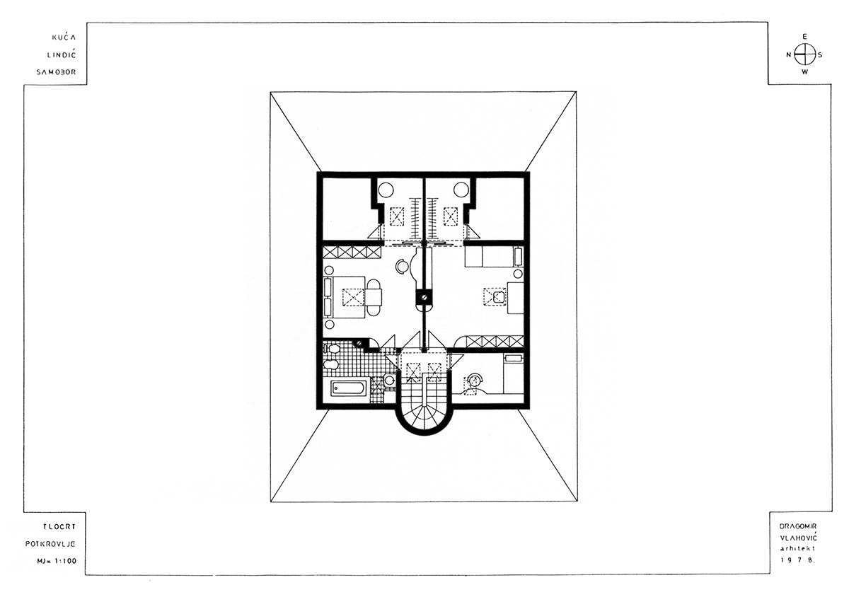
'Žuta kuća' - Lindić, Samobor
projekt
1978.
izvedba:
1978.-1985.